Introducción
![]() |
|
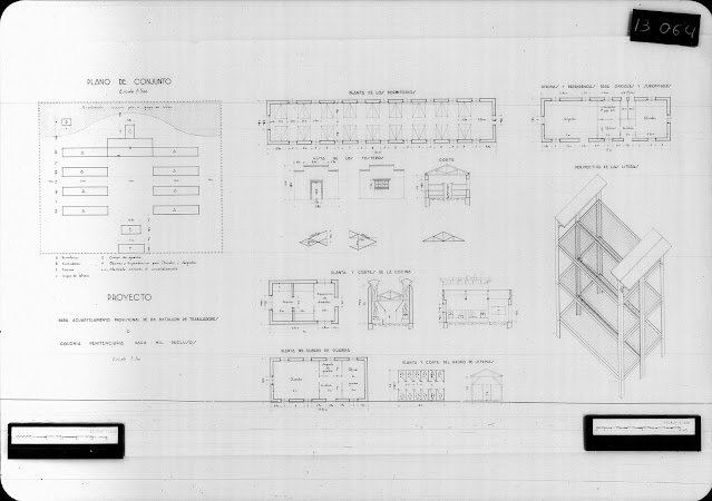
| Proyecto para acuertelamiento o colonia penitenciaria para mil reclusos |
AHPTE_RRDDTP_13034_0001
A veces la publicación de un libro permite retomar ciertos aspectos de nuestra historia reciente un tanto olvidados. En concreto nos referimos a Itinerarios de naturaleza. Teruel. El Parque de los Fueros-Ricardo Eced, editado por la Concejalía de Medio Ambiente del Ayuntamiento de Teruel en el 2020, a cargo de Beatriz Carrasquer Álvarez, Adrián Ponz Miranda y José Carrasquer Zamora. En el capítulo dedicado a la historia del mencionado Parque, se indica que fue rellenado por personas que integraban los batallones disciplinarios y de trabajadores penados.
Los autores proponían un homenaje a estas personas. Un grupo político de la actual corporación municipal lo recogió y lo propuso en un pleno municipal.
Ambas cuestiones fueron dadas a conocer por el Diario de Teruel, en un amplio reportaje el día 8 de febrero del año en curso, en el cual se incluyó hasta algún testimonio oral de una persona que había estado trabajando en nuestra ciudad.
El sistema de redención de penas de trabajo
Este organismo dependiente del Ministerio de Justicia englobó tanto a las personas que habían sido condenadas a prisión por tribunales militares, como a las de los batallones de trabajadores integrados por personas desafectas al Movimiento Nacional e incluso presos.
A veces también fueron mano de obra para empresas particulares. Uno de los casos más conocido es la construcción del Valle de los Caídos. En el resto del país fueron utilizados, principalmente, por Regiones Devastadas y, por supuesto, en Teruel y provincia. Consecuencia directa de todo ello es la redacción de estas líneas.
En este contexto, conviene recordar los múltiples trabajos llevados a cabo por José Manuel López Gómez y comisario de la exposición La reconstrucción de Teruel, 1939-1957, que tuvo lugar del 8 de noviembre al 11 de diciembre del 2005 organizada por el Departamento de Educación, Cultura y Deporte del Gobierno de Aragón, con fondos provenientes de este Archivo. Al igual que les adelantamos que algunos de estos documentos volverán a salir de sus planeros para formar parte de la exposición que el Instituto Aragonés del Arte y la Cultura Contemporánea (IAACC) Pablo Serrano, está preparando sobre el arte contemporáneo aragonés desde los años 40 del siglo XX hasta final de dicha centuria cuya inauguración está prevista para el mes de junio de este año.
![]() |
| AHPTE_GC_1597_97 |
![]() |
| AHPTE_GC_1567_90 |
La documentación en el AHPTE
De todas las cuestiones mencionadas, hay numerosos trabajos de distinta época y visión. A su disposición en el Archivo Histórico Provincial de Teruel tenemos 34 documentos sobre batallones; 334 del Valle de los Caídos y 4.619 del Fondo Regiones Devastadas
Además y si quieren pasear y/o hacer turismo cultural, hay muchas, repetimos muchas, localidades de la provincia de Teruel que conservan numerosos vestigios de nuestro último conflicto bélico, entre otros y muy cerca de la capital, los alrededores de Teruel, El Campillo, Corbalán, Bezas, Celadas o La Puebla de Valverde.




0 comentarios